昌平区 北街家园五区 5号楼12层2单元1502号房屋
小区名称:北街家园二区
房源编号:7213
审核时间:2022-12-26 16:21
关注房源
预约看房 实景图
效果图
起拍价:
¥ 265 万
市估价:
¥380万
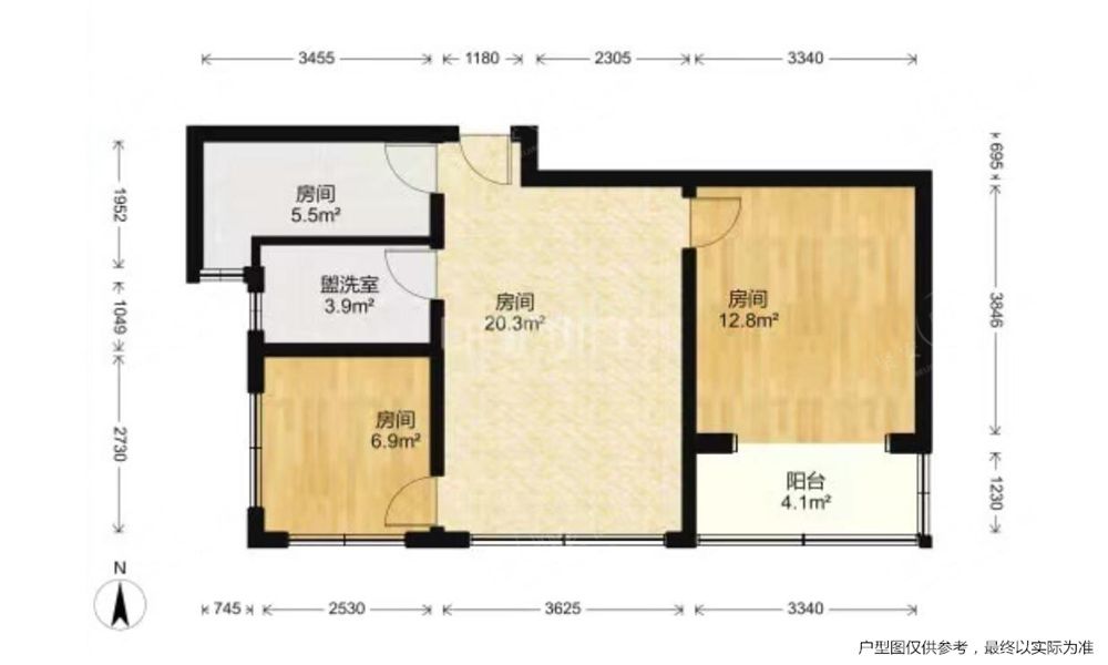
2室1厅
15层/21层73.62㎡
住宅南
2007年
保证金截止倒计时 00
天
00
小时
00
分
00
秒
设置提醒
沙军
经纪人
服务人数423人 满意度100
扫一扫加微信
员工服务监督电话:17601097609竞拍流程:

了解法拍房


委托协拍


实地看房


交保证金


出价竞拍


协助贷款


竞拍成功


过户与交房


售后服务
金融服务
查看更多 

本标由合作银行等机构提供金融服务,需提前两日提交申请。
金融机构
最高贷款比例
利率
其它
渤海银行 最高不超过评估与交易
价孰低者的85%
价孰低者的85%
首套首付 15%,二套首付 20%
首套LPR3.05%;二套五环外LPR3.45%,五环内LPR3.25%
首套LPR3.05%;二套五环外LPR3.45%,五环内LPR3.25%
由北京聚安易成拍卖有限公司对接银
行担保事宜,详情请点击申请
行担保事宜,详情请点击申请
点击查询
累计1672人查询
宁波银行 最高不超过评估与交易
价孰低者的85%
价孰低者的85%
首套首付 15%,二套首付 20%
首套LPR3.05%;二套五环外LPR3.45%,五环内LPR3.25%
首套LPR3.05%;二套五环外LPR3.45%,五环内LPR3.25%
由北京聚安易成拍卖有限公司对接银
行担保事宜,详情请点击申请
行担保事宜,详情请点击申请
点击查询
累计281人查询
光大银行 最高不超过评估与交易
价孰低者的85%
价孰低者的85%
首套首付 15%,二套首付 20%
首套LPR3.05%;二套五环外LPR3.45%,五环内LPR3.25%
首套LPR3.05%;二套五环外LPR3.45%,五环内LPR3.25%
由北京聚安易成拍卖有限公司对接银
行担保事宜,详情请点击申请
行担保事宜,详情请点击申请
点击查询
累计235人查询
更多银行 

渤海银行

我行致力于向广大京东用户提供司法拍卖贷款服务业务,具体信息公布如下:
产 品 概 况:
司法拍卖住房按揭贷款。
最 高 可 贷 款 比 例:
最高不超过评估价与交易价孰低者的85%。
利 率:
首套首付 15%,二套首付 20%
首套LPR3.05%;二套五环外LPR3.45%,五环内LPR3.25%
首套LPR3.05%;二套五环外LPR3.45%,五环内LPR3.25%
贷 款 授 权 对 象:
贷款的对象为年满18周岁,具备北京市购房资格,有按期还本付息能力,信用良好且具有完全民事行为能力的自然人。
服 务 地 域 范 围:
北京市内。
可 贷 资 产 类 型:
住宅。
贷 款 额 度 与 还款期限:
贷款额度最高不超过评估价格与交易价格孰低者的85%,期限最长25年,且贷款期限与借款人年龄之和不超过70周岁。
贷 款 担 保 方 式:
由我行准入的担保(北京聚安易成拍卖有限公司)机构承担阶段性担保。
面 签 需 准 备 资 料:
1、借款申请人及配偶的身份证、户口本、婚姻证明(如离异需提供离婚证、离婚协议书或法院判决书);2、收入证明及半年以上收入银行流水;3、具有购房资格的证明材料;4、个人征信记录(预审批时提供);5、其他银行认为所需提供的资料。
以下情况无法获得贷款:
1、不符合北京地区限购及限贷政策的;2、征信记录或信用状况差;3、其他情况。
申 请 流 程:
1、提交贷款初审资料;2、银行初审;3、初审通过后报名参与法拍并竞拍成功;4、线下面签,开立还款账户,存入首付款(最终成交价格减去保证金及贷款申请金额,如最终审批贷款额度低于申请额度,后期需补充首付款项至指定账户);5、银行复审;6、复审通过后购买履约保险;7、落实放款条件后发放贷款并按相应还款方式按期还款;8、办理解封、过户、抵押手续。
* 请仔细阅读贷款说明
1.请提前至少2个工作日提交申请,否则可能导致银行审核或放款不及时。
2.请如实完整填写,因填写信息有误或不完整可导致无法获得贷款。
3.请提前确认自身征信情况,若征信不良,如有严重失信记录或有涉诉等情况会导致无法贷款。个人征信信息可在人民银行官网查询(
4.请留意银行公告,银行贷款政策以具体公告内容为准。
5.银行需结合申请人资信等进行审核,不承诺一定可放款。不同拍品的贷款产品及流程可能有差异,最终能否贷款及可贷金额、利率、费用等请以银行实际面签结果为准。
已知悉
法拍经理











浏览量11人
